Skip To Content

5510 Merrimac Drive

Sarasota, FL 34231
  • $897,000
  • STATUS: Active
  • ON SITE: 257 Days
  • MLS #: A4642711
Price Reduced
UPDATED: 3 min ago
$897,000
  • 0
    BEDS
  • 0.61
    ACRES
  • 0
    BATHS
  • 0
    1/2 BATHS
Neighborhood:
Type:
Vacant Land / Lots
County:

School Information

Elementary School:
Middle School:
High School:

Description

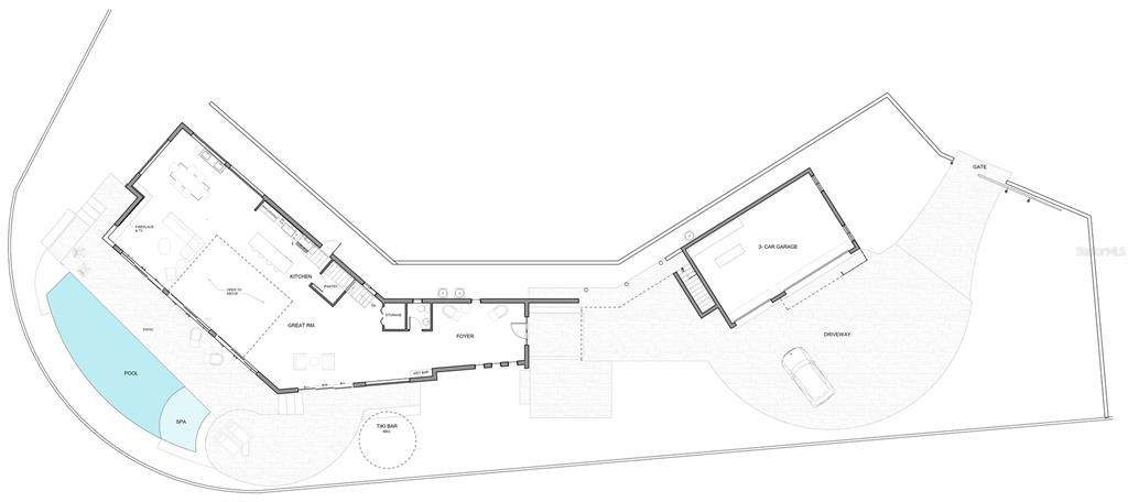
Exceptional Waterfront Lot in Prime Sarasota Location with designed home ready for you to build. Discover over a quarter acre of prime waterfront at the end of a prestigious cul-de-sac in an established boating community. This 13,500 SF lot boasts an impressive 300 feet of waterfront, offering breathtaking sunrise and sunset views with refreshing cross breezes from the water on both sides of the home. Located just minutes from the heart of Sarasota, this rare homesite provides easy access to the Gulf beaches, a quick 10-minute boat ride to the Intracoastal Waterway, and close proximity to dozens of waterfront dining options. Top-rated schools, including Pine View, Riverview, and Philippi Shores, are nearby, along with upscale shopping, fine dining, and vibrant cultural attractions. Enjoy the convenience of a short walk to Phillippi Estate Park or a 10-minute bike ride to the beach. This is a unique opportunity to build your dream waterfront retreat in one of Sarasota's most desirable locations! ABOUT THE PROPOSED HOME FOR THE SITE: Luxury Waterfront Estate New Construction This exceptional waterfront estate offers up to 6,000 SF of luxury living with over 300 linear feet of waterfront. Enjoy breathtaking sunrise and sunset views from your private balcony and panoramic water views from every room. Designed for the most discerning buyer, this home features state-of-the-art luxury appliances and finishes, solid concrete construction, and hurricane-resistant design with all impact windows and doors. Smart home automation includes automated lighting and climate control for modern convenience. The resort-style waterfront pool and spa create the ultimate outdoor oasis, while the rooftop sky deck offers a stunning vantage point for entertaining. A separate 700 SF guest house provides privacy for visitors, and the three enclosed garage spaces ensure ample storage for vehicles and watercraft. Experience the pinnacle of waterfront luxury in one of Sarasota's most sought-after locations!

Monthly Payment Calculator




© 2025 My Florida Regional MLS DBA Stellar MLS. All rights reserved. All listings displayed pursuant to IDX. All listing information is deemed reliable but not guaranteed and should be independently verified through personal inspection by appropriate professionals. Listings displayed on this website may be subject to prior sale or removal from sale; availability of any listing should always be independently verified. Listing information is provided for consumers personal, non-commercial use, solely to identify potential properties for potential purchase; all other use is strictly prohibited and may violate relevant federal and state law. Data last updated 2025-11-14T22:47:05.78.
www.movetosarasotafl.com/homes/160989348
Print Image

5510 Merrimac Drive Sarasota, FL 34231

  • Price: $897,000
  • Status: Active
  • On Site: 257 Days
  • Updated: 3 min ago
  • MLS #: A4642711
0
Beds
0
Baths
0
½ Baths
0.61
Acres
Neighborhood:
Phillippi Gardens 08
County:
Sarasota
Area:
Sarasota/Gulf Gate Branch
Elementary School:
Phillippi Shores Elementary
Middle School:
Brookside Middle
High School:
Riverview High
Property Description
Exceptional Waterfront Lot in Prime Sarasota Location with designed home ready for you to build. Discover over a quarter acre of prime waterfront at the end of a prestigious cul-de-sac in an established boating community. This 13,500 SF lot boasts an impressive 300 feet of waterfront, offering breathtaking sunrise and sunset views with refreshing cross breezes from the water on both sides of the home. Located just minutes from the heart of Sarasota, this rare homesite provides easy access to the Gulf beaches, a quick 10-minute boat ride to the Intracoastal Waterway, and close proximity to dozens of waterfront dining options. Top-rated schools, including Pine View, Riverview, and Philippi Shores, are nearby, along with upscale shopping, fine dining, and vibrant cultural attractions. Enjoy the convenience of a short walk to Phillippi Estate Park or a 10-minute bike ride to the beach. This is a unique opportunity to build your dream waterfront retreat in one of Sarasota's most desirable locations! ABOUT THE PROPOSED HOME FOR THE SITE: Luxury Waterfront Estate New Construction This exceptional waterfront estate offers up to 6,000 SF of luxury living with over 300 linear feet of waterfront. Enjoy breathtaking sunrise and sunset views from your private balcony and panoramic water views from every room. Designed for the most discerning buyer, this home features state-of-the-art luxury appliances and finishes, solid concrete construction, and hurricane-resistant design with all impact windows and doors. Smart home automation includes automated lighting and climate control for modern convenience. The resort-style waterfront pool and spa create the ultimate outdoor oasis, while the rooftop sky deck offers a stunning vantage point for entertaining. A separate 700 SF guest house provides privacy for visitors, and the three enclosed garage spaces ensure ample storage for vehicles and watercraft. Experience the pinnacle of waterfront luxury in one of Sarasota's most sought-after locations!
Exterior Features

Current Adjacent Use Residential Direction Faces Northeast Lot Features Flood PlainIrregular LotStreet Lights Lot Size Dimensions 250 x 45 x 240 x 50 Road Frontage Type Street LightsStreet PavedCounty Road Road Surface Type PavedAsphalt View Water Water Access Yn No Water Extras Yn No Water View Yn No Waterfront Feet Total 0 Waterfront Yn No

Interior Features

Sewer Public Sewer Water Source Public

Property Features

Association Yn No Current Use Residential Flood Zone Code AE For Lease Yn No Ownership Fee Simple Special Listing Conditions None Sw Subdiv Community Name Phillippi Gardens Tax Annual Amount 6306 Total Annual Fees 0 Total Monthly Fees 0 Utilities BB/HS Internet AvailableBB/HS Internet CapableCable AvailableElectrical NearbyFiber OpticsFire HydrantPhone AvailableSewer AvailableStreet LightsWater Nearby Zoning RSF2


Listing information © 2025 My Florida Regional MLS DBA Stellar MLS..
Listing provided courtesy of COLDWELL BANKER REALTY: 941-383-6411.



© 2025 My Florida Regional MLS DBA Stellar MLS. All rights reserved. All listings displayed pursuant to IDX. All listing information is deemed reliable but not guaranteed and should be independently verified through personal inspection by appropriate professionals. Listings displayed on this website may be subject to prior sale or removal from sale; availability of any listing should always be independently verified. Listing information is provided for consumers personal, non-commercial use, solely to identify potential properties for potential purchase; all other use is strictly prohibited and may violate relevant federal and state law. Data last updated 2025-11-14T22:47:05.78.
 
https://bt-photos.global.ssl.fastly.net/mfr/orig_boomver_2_A4642711-2.jpg https://bt-photos.global.ssl.fastly.net/mfr/orig_boomver_2_A4642711-2.jpg https://bt-photos.global.ssl.fastly.net/mfr/orig_boomver_2_A4642711-2.jpg
Logo
Medway Realty
8065 Beneva Rd, Suite 7
Sarasota FL, 34238