Skip To Content

524 1ST Street S

Winter Haven, FL 33880
  • $303,111
  • STATUS: Active
  • ON SITE: 332 Days
  • MLS #: L4949798
UPDATED: 42 min ago
$303,111
  • 0
    BEDS
  • 0.23
    ACRES
  • 0
    BATHS
  • 0
    1/2 BATHS
  • 1,320
    SQFT
  • $230
    $/SQFT
Neighborhood:
Type:
Commercial
Built:
1942
County:

School Ratings & Info

Description

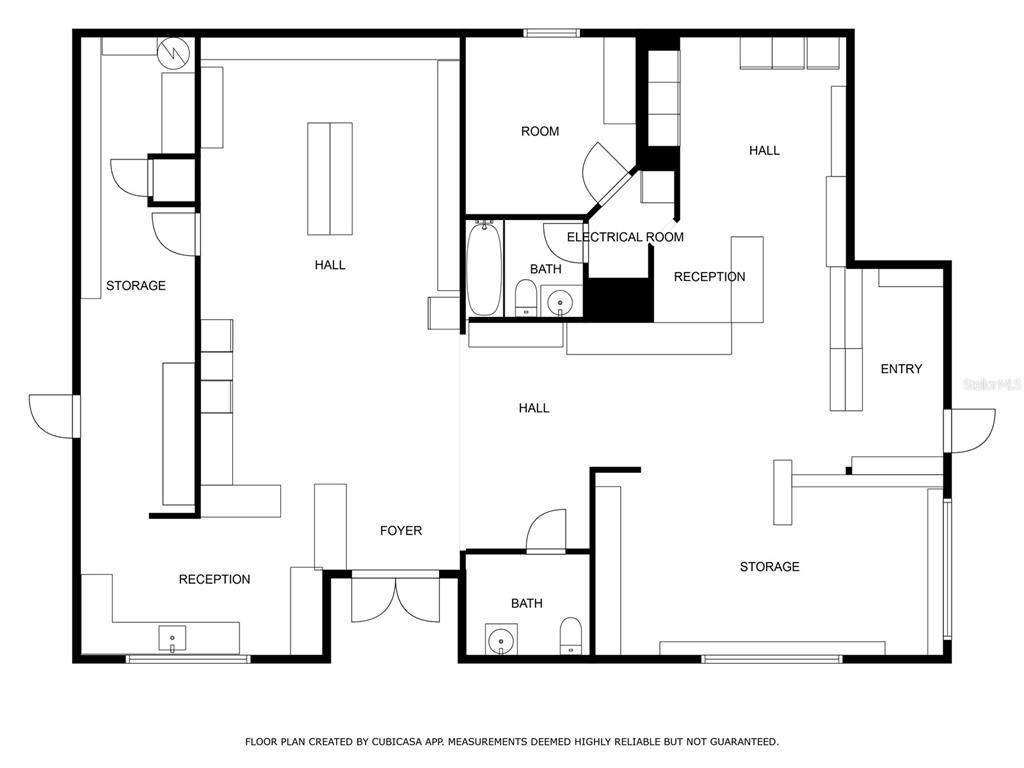
This 1,320 sq. ft. commercial office building is ideally located in the heart of Winter Haven, offering exceptional visibility and high daily traffic along one of the city's busiest corridors. Zoned CC-3 with an existing medical use, the property provides flexibility for a wide range of professional, medical, or general commercial applications. Inside, you'll find a well-designed layout that includes three private offices, a reception and waiting area, and a kitchen/break areaall thoughtfully arranged for efficient operations and client comfort. Accessibility and convenience are top priorities, with ramped entry points at both doors, ADA-compliant access, and a well-maintained parking lot that easily accommodates both clients and staff. Important Note: This property is listed separately but offered in conjunction with 632 1st St S, Winter Haven, FL 33880 (MLS# L4949801). Each building is priced individually, but together they present a rare opportunity to secure two adjacent commercial properties in a thriving, high-traffic location. Whether you're establishing or expanding a medical office, professional workspace, or other approved commercial use, this property delivers the ideal combination of visibility, versatility, and long-term investment potential. Schedule your private tour today and experience all this space has to offer!

Monthly Payment Calculator




© 2025 My Florida Regional MLS DBA Stellar MLS. All rights reserved. All listings displayed pursuant to IDX. All listing information is deemed reliable but not guaranteed and should be independently verified through personal inspection by appropriate professionals. Listings displayed on this website may be subject to prior sale or removal from sale; availability of any listing should always be independently verified. Listing information is provided for consumers personal, non-commercial use, solely to identify potential properties for potential purchase; all other use is strictly prohibited and may violate relevant federal and state law. Data last updated 2025-12-06T22:43:51.043.
www.movetosarasotafl.com/homes/159261022
Print Image

524 1ST Street S Winter Haven, FL 33880

  • Price: $303,111
  • Status: Active
  • On Site: 332 Days
  • Updated: 42 min ago
  • MLS #: L4949798
0
Beds
0
Baths
0
½ Baths
0.23
Acres
1,320
SQFT
$230
$/SQFT
1942
Built
Neighborhood:
Van Sickle C H Sub
County:
Polk
Area:
Winter Haven/Eloise/Jpv/Wahnetta
Property Description
This 1,320 sq. ft. commercial office building is ideally located in the heart of Winter Haven, offering exceptional visibility and high daily traffic along one of the city's busiest corridors. Zoned CC-3 with an existing medical use, the property provides flexibility for a wide range of professional, medical, or general commercial applications. Inside, you'll find a well-designed layout that includes three private offices, a reception and waiting area, and a kitchen/break areaall thoughtfully arranged for efficient operations and client comfort. Accessibility and convenience are top priorities, with ramped entry points at both doors, ADA-compliant access, and a well-maintained parking lot that easily accommodates both clients and staff. Important Note: This property is listed separately but offered in conjunction with 632 1st St S, Winter Haven, FL 33880 (MLS# L4949801). Each building is priced individually, but together they present a rare opportunity to secure two adjacent commercial properties in a thriving, high-traffic location. Whether you're establishing or expanding a medical office, professional workspace, or other approved commercial use, this property delivers the ideal combination of visibility, versatility, and long-term investment potential. Schedule your private tour today and experience all this space has to offer!
Exterior Features

Adjoining Property Commercial Construction Materials StuccoWood Frame Foundation Details Stem Wall Parking Features 1 to 5 Spaces Road Frontage Type City Street Road Surface Type Paved Roof Shingle Water Access Yn No Water Extras Yn No Water View Yn No Waterfront Feet Total 0 Waterfront Yn No

Interior Features

Building Area Total 1320 Ceiling Height 8 to 9 Feet Cooling Central Air Cooling YN Yes Heating Central Heating YN Yes Number Of Offices 3 Sewer Public Sewer Water Source Public Window Features Blinds

Property Features

Condo Environment Yn No Converted Residence Yn Yes Flood Zone Code X Listing Terms CashConventionalOther New Construction Yn No Ownership Corporation Property Sub Type Mixed Use Realtor Info No Sign Security Features Security System Special Listing Conditions None Tax Annual Amount 3282 Total Annual Fees 0 Total Monthly Fees 0 Zoning C-3


Listing information © 2025 My Florida Regional MLS DBA Stellar MLS..
Listing provided courtesy of KELLER WILLIAMS REALTY SMART: 863-577-1234.



© 2025 My Florida Regional MLS DBA Stellar MLS. All rights reserved. All listings displayed pursuant to IDX. All listing information is deemed reliable but not guaranteed and should be independently verified through personal inspection by appropriate professionals. Listings displayed on this website may be subject to prior sale or removal from sale; availability of any listing should always be independently verified. Listing information is provided for consumers personal, non-commercial use, solely to identify potential properties for potential purchase; all other use is strictly prohibited and may violate relevant federal and state law. Data last updated 2025-12-06T22:43:51.043.
 
https://bt-photos.global.ssl.fastly.net/mfr/orig_boomver_1_L4949798-2.jpg https://bt-photos.global.ssl.fastly.net/mfr/orig_boomver_1_L4949798-2.jpg https://bt-photos.global.ssl.fastly.net/mfr/orig_boomver_1_L4949798-2.jpg
Logo
Medway Realty
8065 Beneva Rd, Suite 7
Sarasota FL, 34238